This project involved designing a new Byron Bay HQ for a local fashion brand, ROWIE.

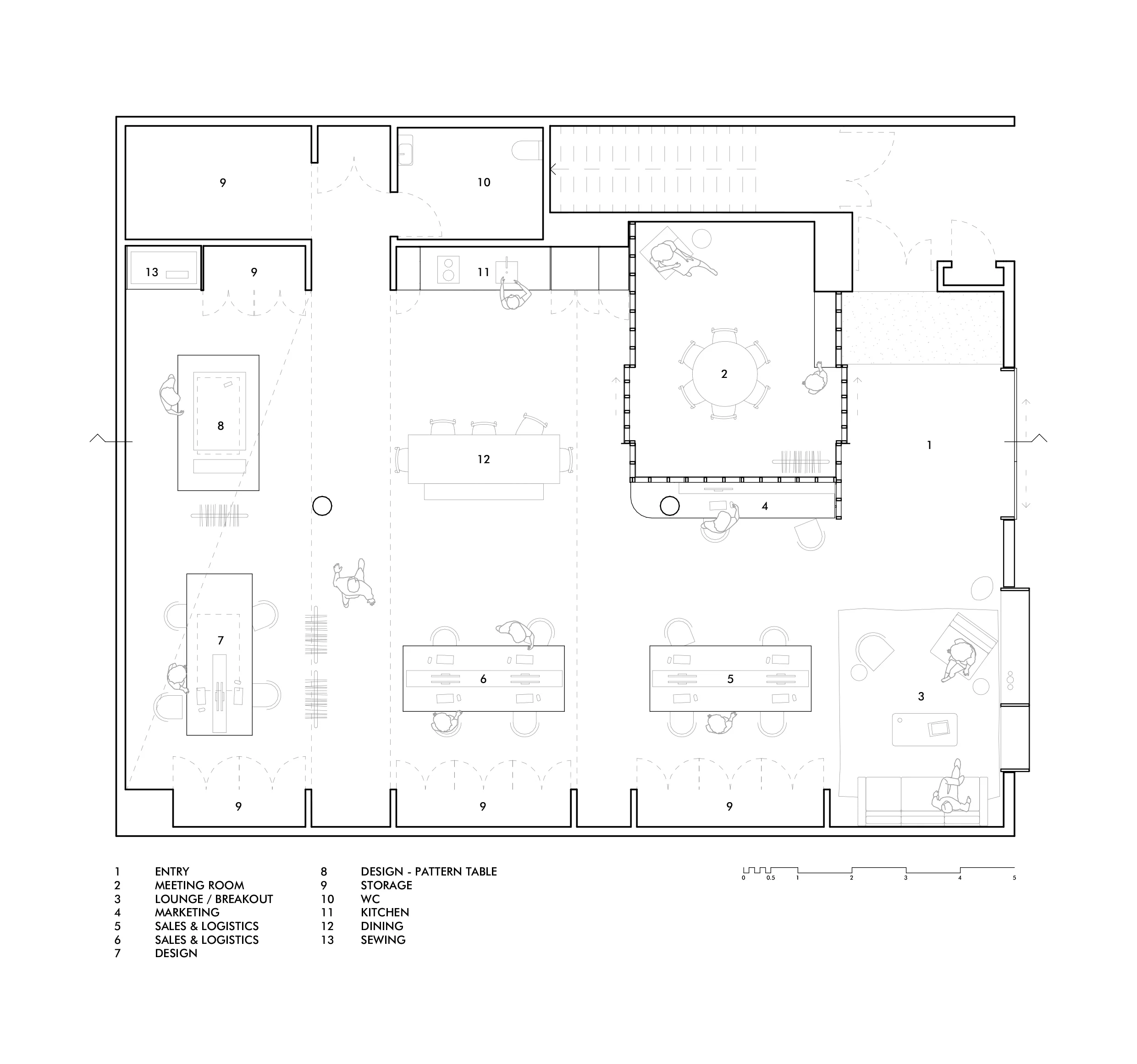
The design references a family home, with kitchen, dining and communal spaces situated at the heart of the office. This approach encourages greater staff interaction and supports informal meetings, whilst also presenting the office as a beautiful and welcoming space for visitors.

The original building had great volume with a large double-height space at the rear, but suffered from a lack of light, with natural light only entering through windows at the very front of the tenancy. We designed a lantern-like meeting room, constructed out of fibreglass and pine, as a simple and cost-effective solution that worked with the tight timeframes required for the build. This opaque room allows natural light to flood through the tenancy into the kitchen, dining and rear workplace zones.

Custom skylight sheaths provide natural light whilst minimising glare in an office setting. For this project, we designed custom workstations, furniture and lights - a testatment to the client’s respect for the design process.

The entrance opens onto an informal lounge, used for everything from photo shoots, lunch breaks, team meetings and a reception space.

Builder: Morada Build / Kick Building
Stylist: Kimberley Wiedermann
Photographer: Tasha Tylee

Previous
Previous

Newrybar

Next
Next

Ewingsdale