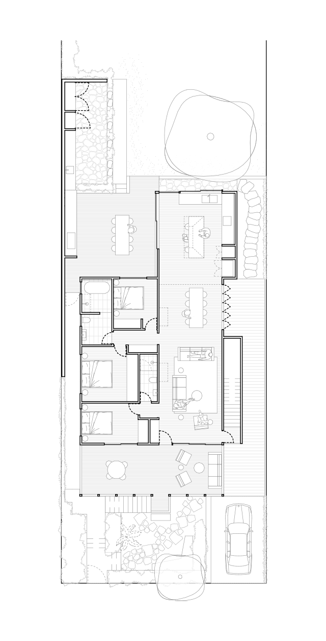
The original brief for this home in Byron Bay was a reconfiguration of the kitchen & laundry. After reviewing the plan, it became clear that a simple yet wholesale rethink of the internal rooms could turn a rabbit warren of rooms into a home which connected the garden to the east with the views across the bay to Wollumbin (Mt. Warning) to the west. Importantly, the building’s external shell was retained, preserving the character of Byron’s streets and heritage.

The existing roof trusses and low ceilings were reconfigured, with large skylight wells created within the existing structure to draw light and volume back into various spaces throughout the home. This undulating ceiling provides a contrast in volume when moving through the house, resulting in cosy bedrooms and expansive living areas.

Meanwhile, an uninspiring undercroft was converted into a light-filled, self-contained guest suite that celebrates the existing hardwood floor structure and brick bones. Materials and joinery elements are designed to complement and highlight the existing nature of the undercroft, and the craft involved in the original timber house.

The result is a relaxed beach house that provides a strong connection to the outdoors, ample natural light and space for the owners to entertain family and friends. 

Builder: Kick Building
Interior Designer: We Are Triibe
Photographer: Cieran Murphy

Previous
Previous

16 Banksia Drive

Next
Next

New Brighton